Trilocale in vendita

Asti, Via Alessandro Manzoni
€ 88.000
3 locali 3 locali
75 Mq 75 Mq
1 bagno 1 bagno

Trilocale in vendita

Asti, Via Alessandro Manzoni

Descrizione annuncio

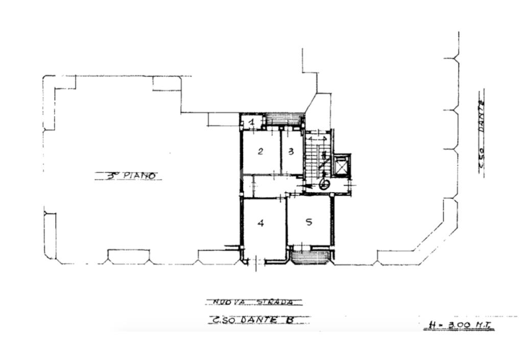
Via Alessandro Manzoni, nel comune di Asti, appartamento al terzo piano servito da ascensore. L'immobile, da ristrutturare, offre l'opportunità di personalizzare gli spazi secondo le proprie esigenze. La disposizione interna comprende un tinello con cucinotto, facilmente trasformabile in una cucina abitabile, ideale per chi ama cucinare e ricevere ospiti. Le due camere da letto sono ampie e luminose, garantendo comfort e tranquillità. Il bagno, dotato di finestra, assicura un'ottima ventilazione naturale. Un pratico ripostiglio completa la funzionalità dell'appartamento. I due balconi offrono una piacevole vista sulla zona circostante, permettendo di godere di momenti di relax all'aria aperta. Completa la proprietà una cantina al piano interrato. Questa soluzione rappresenta un'opportunità interessante per chi desidera creare un ambiente su misura in una posizione comoda e ben servita.

Mostra tutto

Nelle vicinanze

Trasporto pubblico Trasporto pubblico
Asti
Asti
1,7 Km
Trasporto pubblico
3,0 Km
Corso Dante – Via Gozzano
Corso Dante – Via Gozzano
50 m
Corso Dante – Via Manzoni
Corso Dante – Via Manzoni
60 m
Scuole Scuole
Scuola elementare Michelangelo Buonarroti
230 m
Scuola elementare Salvo D'Acquisto
460 m
Istituto tecnico commerciale Giovanni Antonio Giobert
510 m
Scuola dell'infanzia e primaria Madre Maria Mazzarello
510 m
Scuola media Angelo Brofferio
540 m
Farmacia Farmacia
Farmacia Don Bosco
400 m
Farmacia Nuova
660 m
Farmacia Torretta
970 m
Farmacia Maggiora
990 m
Farmacia piazza Roma
1,1 Km
Ospedali Ospedali
Ospedale Cardinal Massaia
550 m
Supermercati Supermercati
Punto Simply
100 m
Simply Market
310 m
Carrefour Express
640 m
U2
940 m
Pam
1,1 Km
Negozi Negozi
MeC – carni, salumi, formaggi, pasta
60 m
Panetteria Pasticceria La Vittoria
140 m
Il piacere della tradizione
310 m
Il Falco – Panetteria pasticceria
340 m
Punto Simply
540 m
Bar Bar
Rewind
350 m
7000 caffè
350 m
Bar Champ
490 m
Pronto Bar
500 m
Cento13 Caffè
500 m
Ristoranti Ristoranti
Ritrovo Don Bosco
120 m
Cambiocavallo
670 m
Ristorante Divino self service
940 m
IL Cavallo Scosso
960 m
Maldera
970 m
Mostra tutto

Caratteristiche

Rif.:
61148869
Piano:
3 di 5 con ascensore (Piano medio)
Balconi:
2
Camere da letto:
2
Arredamento:
Assente
Condizionamento:
Assente
Mostra tutto
Prezzo Prezzo
€ 88.000
Rata mutuo Rata mutuo
€ 415 / mese
Spese annue Spese annue
€ 1.700
Proponi il tuo prezzoProponi il tuo prezzo
Immobile valutato con T·Valuta

Classe Energetica

G
G
G
G
G
G
G
G
G
EP globale non rinnovabile:
175.39 kW h/m² anno
EP globale rinnovabile:
12.81 kW h/m² anno
EP invernale del fabbricato:
EP estiva del fabbricato:
Anno di costruzione:
1965
Riscaldamento:
Centralizzato
Tipo impianto:
A radiatori
Tipo alimentazione:
Metano

Ti interessa visionare l'immobile?

Fissa un appuntamento  Fissa un appuntamento

Richiedi informazioni

Clicca su Leggi per aprire l'informativa
* Questi campi sono obbligatori

Calcola il tuo mutuo

Semplice e senza impegno
Anticipo

( % )
Mutuo

( % )

pochi semplici passi

inserisci i tuoi dati
Questionario completato
Grazie per aver richiesto un appuntamento senza impegno con un nostro Consulente del Credito e Assicurativo.

Hai inserito correttamente tutti i dati necessari e a breve riceverai una e-mail con un link da convalidare per inviare i tuoi dati.
Affiliato
Immobiliare Dante Sas
Corso Dante, 41 14100 Asti (AT)

Il nostro staff


  • Simone Canazza
    Collaboratore

  • Marta Boero
    Responsabile

  • Fabiana Casalegno
    Coordinatrice

  • Vincenzo Folino
    Affiliato

  • Dennis Melita
    Collaboratore
Corso Dante, 41 14100 Asti (AT)
Zona: Asti centro
Mostra su mappa
Orari: dal lunedì al venerdì: 09.00 - 12.30/14.30 - 19.30 - sabato: 09.00 - 12.30/14.30 - 18.30
Affiliato
Immobiliare Dante Sas
Corso Dante, 41 14100 Asti (AT)

2025 Tecnocasa Franchising S.p.A. - P. IVA 08365160152 - Via Monte Bianco 60/A 20089 Rozzano (MI). Ogni agenzia ha un proprio titolare ed è autonoma. Privacy policy | Policy utilizzo | Cookie policy